CIECC, Pekin’in Shunyi Bölgesi’nde, Başkent Uluslararası Havalimanı’na yakın bir konumda yer alıyor. Zaha Hadid Architects’e göre bu yapı, Pekin’in en büyük ve en gelişmiş fuar ve kongre alanı olma özelliğini taşıyor.
Proje Detayları
Proje Konusu: Kültür Merkezi
Mimar: Zaha Hadid Architects
Alan: 60.200 m²
Yıl: 2025
Fotoğraflar: Virgile Simon Bertrand
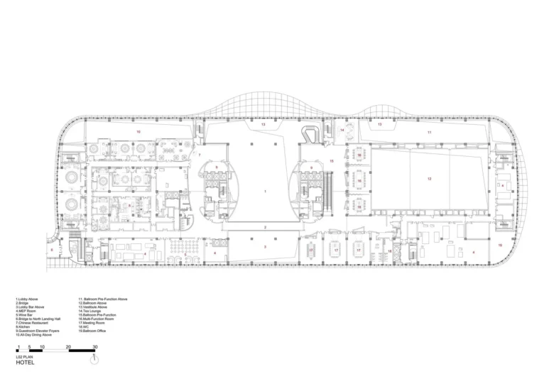
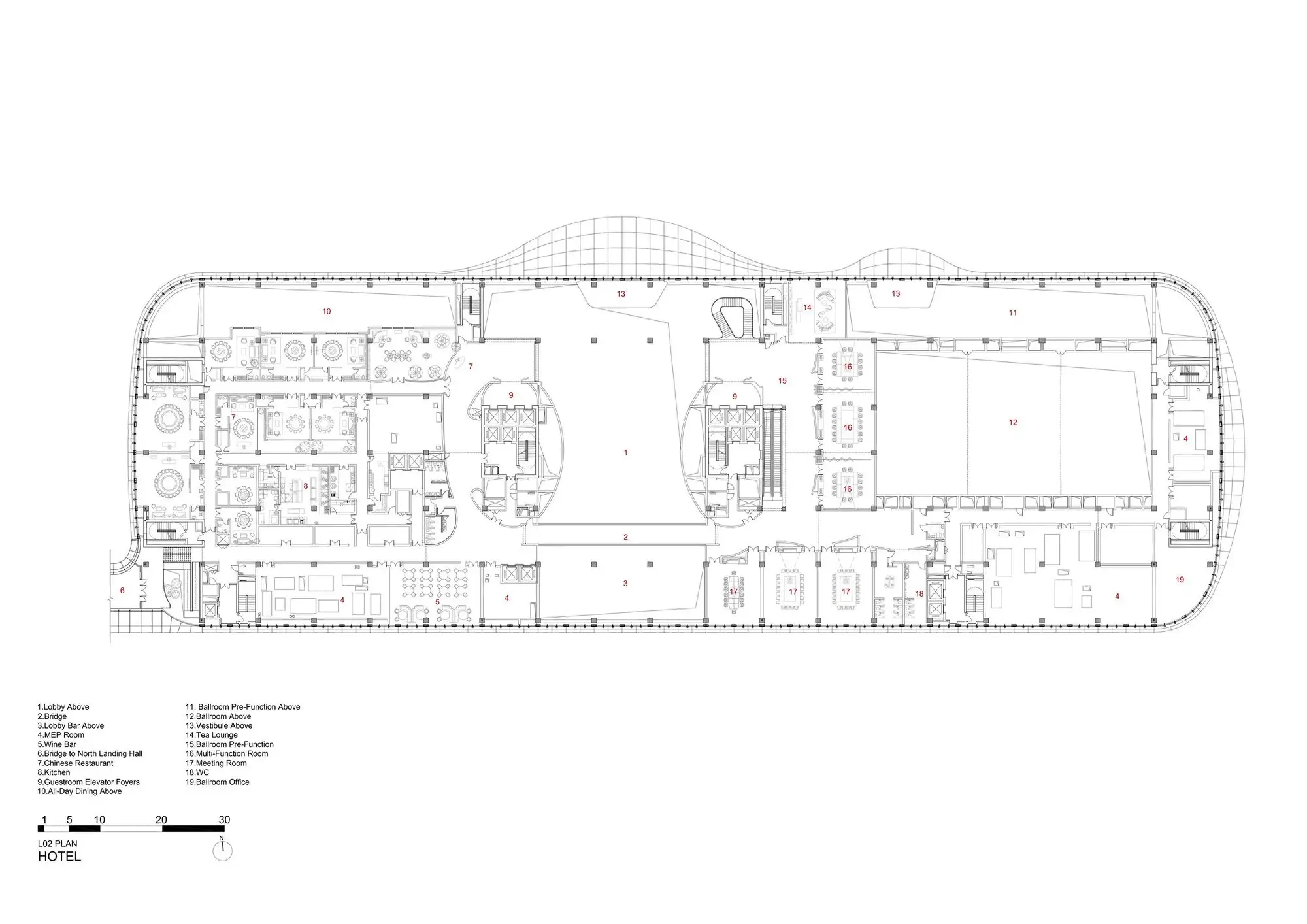
Kompleksin programında dokuz yeni sergi salonu, üç yeni resepsiyon salonu, 9 bin delegeye hizmet verecek 9 bin delegeli konferans merkezi ve 410 odalı bir otel yer alıyor.
CIECC, Pekin’in Shunyi Bölgesi’nde, Başkent Uluslararası Havalimanı’na yakın bir konumda yer alıyor. Zaha Hadid Architects’e göre bu yapı, Pekin’in en büyük ve en gelişmiş fuar ve kongre alanı olma özelliğini taşıyor.
- Görünüş Çizimleri
Merkezin tasarımında akıcı ve kıvrımlı hatlar öne çıkıyor. Bakır tonlarında alüminyum kaplamalı cephesi, binanın büyük ölçeğini görsel olarak yumuşatmak için özel olarak şekillendirildi.
Doğu cephesinin merkezinde büyük bir kemer, ana giriş olarak hizmet veriyor.
Giriş holü, açık hava avlusuna açılarak merkezin ana omurgasını oluşturuyor. Bu avlu, dört sergi salonunu bir tarafta, beş sergi salonunu diğer tarafta birbirine bağlıyor. Zemin katta yer alan kıvrımlı cam duvarlar, mekanı çevreleyen bir görünüm sunuyor.
- Kat Planı çizimleri
Avlu üzerinde, şeritlerden ilham alınarak tasarlanmış köprüler, çapraz bir şekilde uzanarak üst katlardaki alanları birbirine bağlıyor. Kuzey girişinin her iki yanında konferans merkezi ve otel konumlandırılmış olup buradan sergi salonlarına geçiş sağlanıyor.
Zaha Hadid Architects, CIECC’yi modüler ve hafif bir çatı sistemiyle tasarladı. Simetrik geometrilere sahip kompozit çatı yapısı, yalıtımlı ve geniş açıklıklı bir sistem oluşturarak kolon gerektirmeyen esnek sergi alanları sağlıyor. Bu sayede mekân, farklı etkinliklere göre kolayca uyarlanabiliyor.
Stüdyo, bu modüler üretim ve inşaat yöntemleri sayesinde merkezin yapım süresinin, yatırım maliyetinin ve işletme giderlerinin azaltıldığını belirtiyor. Zaha Hadid Architects’in son dönemde tamamladığı diğer projeler arasında Riyad’da geometrik deliklere sahip kıvrımlı bir metro istasyonu ve Malta’nın en yüksek binası olan, bükümlü cephesiyle dikkat çeken gökdelen yer alıyor.
31 Mart 2016 tarihinde Miami Beach’de hayata gözlerini kapatan ünlü mimarın tüm projelerine Zaha Hadid Eserleri sayfamızdan görüntüleyebilirsiniz.
















