Ev, Brasília kenti yakınlarında, SMDB’de yer alıyor. Burası, genellikle bireysel konutların bulunduğu bir bölge ve parka komşu olan arsa, kentin bu alanlar için benimsediği pastoral ölçeği güçlendiren koruma altındaki cerrado biyomuna açılıyor
Proje Detayları
Proje Konusu: Taş Ev
Mimar: Esquadra Arquitetos Mimarlık Ofisi
Alan: 580 m²
Yapım Yıl: 2021
Fotoğraflar: Joana França
Proje, konumunun ve çevresinin sunduğu fırsatları değerlendirerek tasarım kararlarını şekillendiriyor. Sitenin son parseli olması ve çıkmaz sokağa bağlanan yol sistemi sayesinde, araca erişim daha sakin, akıcı ve düşük yoğunluklu bir hale geliyor.
Bu yumuşak erişim fikri, tasarımda bir araç altı geçidi (port-cochère) olarak karşılık buluyor. Çevre ile kurulan ilişkilerde, park manzaraları ve güneş yönelimi göz önünde bulundurularak, evi koruma elemanlarına fazla ihtiyaç duymadan dışa açmak amaçlandı.
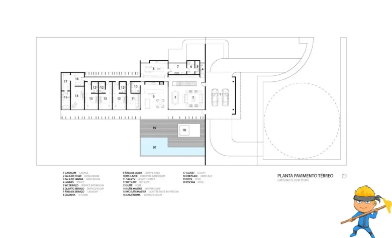
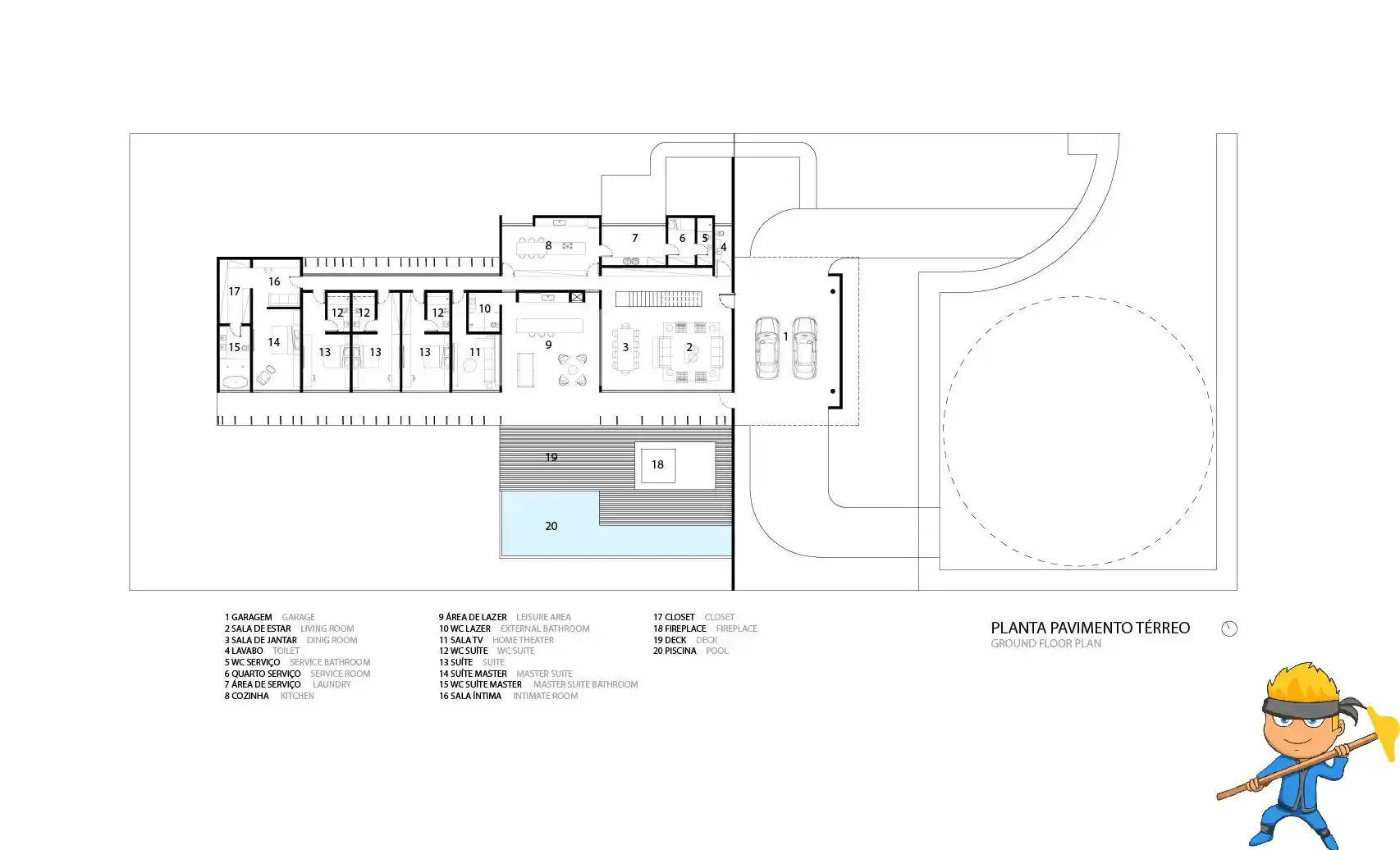
Mimari Çizimleri
Mimarlık ofisi Esquadra Arquitetos tarafından paylaşılan projenin kat planları, kesit, görünüş çizimleri.
Ev, malzeme seçimleriyle doğayla doğrudan bağ kuruyor. Kullanılan taş, beton ve ahşap gibi doğal unsurlar, dokuları ve renkleriyle doğanın saf formlarını yansıtıyor. Dış ve iç mekanların sınırları taş duvarlarla belirsizleştirilerek, belirli noktalarda iç ve dış mekanın kesintisiz devam etmesi sağlanıyor. Beton, yapının hacmini ve taşıyıcı sistemini oluştururken, modüler düzeniyle yapısal bir rasyonellik sunuyor. Ahşap ise panjurlar, gölgelikler, tavan kaplamaları ve deck zeminlerde yer alıyor. Seçici kullanımı, evin kompozisyonunda malzemeler arasında bir denge oluşturarak, farklı anlarda her birinin kendini öne çıkarmasına imkan tanıyor.
Ev, tüm uzunluğu boyunca uzanan iki ters kirişle desteklenen büyük bir açık beton plak tarafından taşınıyor. Bu kirişlerin üzerine oturan, adeta masif bir kaya gibi duran katı kütlede, evin tek katlı yapısının içinde bir mezzanine olarak yükselen ofis yer alıyor. Bu alan, koruma bölgesine panoramik bir bakış sunuyor.
Ahşap panjurların ritmik yerleşimi, evin işlevsel planlamasını yansıtıyor. Yatak odaları ve kapalı mekanlar daha mahrem ve gölgeli bir karakter kazanırken, sosyal alanlar tamamen açılarak bahçeye ve parkın doğal manzarasına engelsiz bir geçiş sağlıyor. Bu panjurların oluşturduğu gölgeler, gün boyunca değişerek her an farklı bir atmosfer yaratıyor.
Ev Dekorasyon Detayları
Taş Ev’in yatak odaları, doğayla iç içe bir deneyim sunmak amacıyla tasarlanmış. Ahşap panjurların ritmik kullanımı sayesinde ışık ve gölge oyunları mekana dinamizm katarken, mahremiyeti de koruyor. Büyük cam açıklıklar, yatak odalarının doğal manzaraya açılmasını sağlıyor ve iç mekan ile dış dünya arasında kesintisiz bir ilişki kuruyor. Zeminlerde kullanılan ahşap kaplama, sıcak ve doğal bir atmosfer yaratırken, duvarlarda ise taş ve beton dokuları bir araya getirilerek mekana hem modern hem de doğal bir hava katılmış.

Banyolar ise, taş ve betonun ağırlıklı olarak kullanıldığı, ham malzeme estetiğinin ön planda olduğu mekanlar. Tezgahlar, doğal taş yüzeylerden oluşturulmuş ve lavabolar da yine yekpare taş bloklardan oyularak mekana özgün bir karakter kazandırılmış. Büyük aynalar, banyoları daha geniş ve ferah gösterirken, ince metal çerçeveli cam duş bölmeleri alanın geçirgenliğini artırıyor. Ahşap detaylar, banyo mobilyalarında ve tavan kaplamalarında kullanılarak, taşın soğuk etkisini dengelemiş.
Benzer çizim makalelerime Mimari Projeler kategorisinden görüntüleyebilirsiniz.

















