Anaokulu Kompleks Projesi – DWG

Toplamda 6,900 m2 alandan oluşan, büyük bir kompleks AnaOkulu projesi AutoCAD dwg çizimleri.

Anaokulu Proje çizimi İhtiyaç Programına uygun olarak; Yönetim Birimleri, Eğitim sınıfı ve Atölyeler, Konferans salonu, Oyun alanı, Çocuk parkı, Park Alanı, tuvalet çözümleri gibi tüm birimler proje içerisine işlenmiştir.

Anaokulu projesi arayanlar için bulunmak bir çizimin AutoCAD DWG çizimlerini Premium olarak indirebilirsiniz.

Anaokulu Projesi – DWG İndir


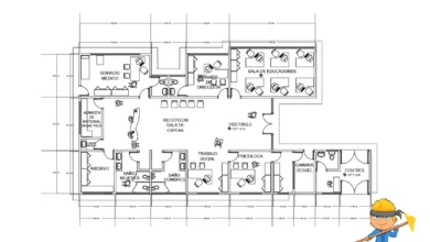
İndireceğiniz proje içerisinde yer alan görselleri, aşağıdaki resimler üzerine tıklayarak büyük çizim hallerini görüntüleyebilirsiniz.

anaokulu kompleksi projesi, autocad dwg indir

Yukarıda tüm çizim detaylarını paylaştığımız Anaokulu Projesinin AutoCAD uzantılı .dwg dosyasını 199 TL’ye Shopier mağazamız üzerinden güvenle satın alabilirsiniz.

Anaokulu – İhtiyaç Programı


Anaokulu Projesi ihtiyaç programı

Eğitim Alanları

  • Sınıflar Etkinlik Odaları
  • Kütüphane / Okuma Köşesi
  • Sanat ve Müzik Atölyeleri
  • Bilim ve Keşif Köşesi

İdari ve Personel Alanları

  • Yönetim Ofisleri
  • Öğretmenler Odası
  • Rehberlik ve Danışmanlık Birimi

Ortak ve Sosyal Alanlar

  • Oyun Alanları (Kapalı ve Açık)
  • Çok Amaçlı Salon
  • Yemekhane ve Mutfak

Servis ve Destek Alanları

  • Giriş ve Karşılama Alanı
  • Uyku ve Dinlenme Odaları
  • WC ve Lavabolar (Çocuk ve Yetişkin)
  • Depo ve Teknik Alanlar

Bir yanıt yazın

E-posta adresiniz yayınlanmayacak. Gerekli alanlar * ile işaretlenmişlerdir