Yapının malzeme seçimi ve konstrüksiyon süreci, sürdürülebilirlik ilkesine dayanıyor. Bölgedeki mevcut yapı dokusuna uyum sağlayan doğal ve geri dönüştürülebilir malzemeler kullanılarak çevresel ayak izi minimize ediliyor. Aynı zamanda, yerel işçilikten yararlanılarak ekonomik ve ekolojik açıdan bilinçli bir üretim süreci gerçekleştiriliyor. Prefabrik yapı elemanları sayesinde inşaat süresi kısaltılarak maliyet etkin bir yaklaşım benimsenmiş bir proje.
Proje Detayları
Proje Konusu: Konut
Mimar: Carles Enrich Studio
Alan: 800 m²
Yıl: 2022
Fotoğraflar: Adrià Goula
Carles Enrich Studio’nun 11 Social Houses projesi, estetik ve fonksiyonelliği sosyal bir değerle harmanlayan çağdaş bir sosyal konut modeli sunuyor. Şehirlerin giderek daha fazla bireyselleştiği günümüzde, böylesine kolektif bir yaşam önerisi, gelecekteki sosyal konut projeleri için de ilham verici bir örnek teşkil ediyor.
Zemin kattaki evlerin geçirgen zeminli küçük avluları varken, birinci kattakiler teraslara açılıyor. Evler, gereksiz koridorları ortadan kaldırıp yaşam alanını en verimli şekilde kullanmaya odaklanan, eşitlikçi bir yerleşim mantığıyla tasarlanmış. Üç farklı temel daire tipi var: bir, iki ve üç odalı dairelerden oluşmaktadır. Ama bu tipler, mevcut koşullara uyum sağlayabilecek şekilde farklı varyasyonlarla sunuluyor.
Genel olarak, bu tasarım anlayışı sayesinde evlerde koridor gibi ölü alanlar yerine tamamen kullanılabilir yaşam alanları yaratılmış.
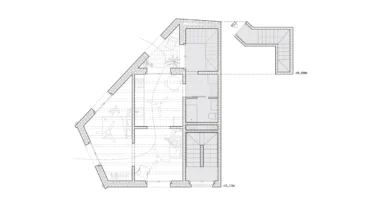
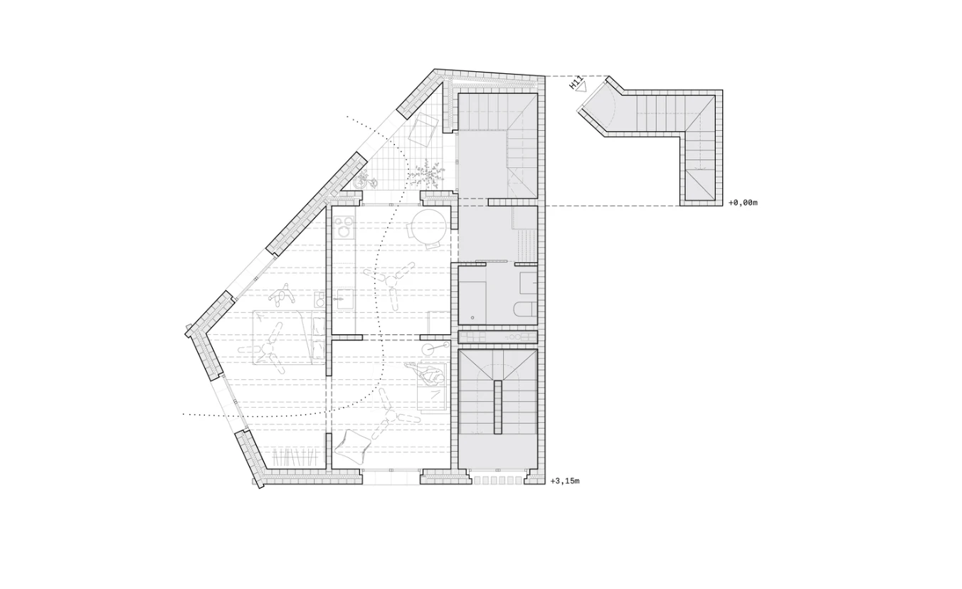
Mimari Proje Çizimleri
Bu projede ki mimari çizimler, sosyal konut anlayışına yeni bir bakış açısı getiren tasarım yaklaşımını yansıtıyor. Plan, kesit ve görünüşler, hem bireysel hem de ortak yaşam alanlarını optimize edecek şekilde düzenlenmiş.
Carles Enrich Studio tarafında paylaşılan bu projeye ait mimari proje çizim görselleri.
Bu çizimler, projenin sosyal sürdürülebilirlik, topluluk odaklı tasarım ve modüler mekânsal kurgusunu açıkça ortaya koyan bir mimari dil oluşturur.
İç Dekorasyon Tasarımı
11 Social Houses projesinin iç dekorasyonu, sade, doğal ve sıcak bir atmosfer yaratmayı hedefleyen minimalist ve fonksiyonel bir tasarım anlayışına sahip. İç mekânda kullanılan malzemeler, sürdürülebilir ve uzun ömürlü olacak şekilde seçilmiş. İşte iç dekorasyona dair detaylar;
- Malzeme Seçimi ve Renk Paleti
Beyaz ve açık ahşap dokular ön planda. Mekânlar, beyaz duvarlar ve açık renkli ahşap yüzeylerle ferah ve aydınlık bir atmosfer sunuyor. Ahşap malzemeler genellikle yerel kaynaklardan temin edilen doğal ahşap paneller veya lamine ahşap yüzeylerden oluşuyor. Beton ve doğal taş detayları, mekanlara modern ve dayanıklı bir hava katıyor. - Doğal Işık ve Havalandırma: İç mekânlar büyük pencere açıklıkları ve yarı açık teraslar sayesinde bol doğal ışık alıyor. Ahşap jaluziler veya perdeler, gün ışığını kontrollü bir şekilde içeri alarak gölge oyunları yaratıyor.
Doğal havalandırmayı desteklemek için çift cepheli açıklıklar kullanılmış.
Genel olarak, iç dekorasyon işlevsellik, sıcaklık ve doğallık üzerine kurulu. Modern ama samimi bir tasarım dili ile minimalist estetik bir araya getirilmiş.
Bu yazımda sizlerle Mimari Projeler kategorisinde paylaştığım 11 daireli konut projesini incelik.
Projenin dış cephe tasarımı gayet başarılı olsa da iç mekanda kullanılan beyaz’ın tonlarını pek sevemedim. Yapının içerisi konteyner tarzı bir proje olmuş.





















